天健天玺是天健集团“天”字系广州首发,位于500亿重金打造的广州黄埔区科学城长岭居板块。
其中项目约4.2万方的土地,仅规划了500+户,容积率仅为2.0,低到惊人。

小区配套:同时,项目在颇具东方神韵的美感园林,还构建强大的功能区,大大提升社区温情。
比如,全龄段儿童游乐区,配置滑梯等全龄设施,既满足亲子游乐所需,又能从小培养起孩子的探索欲。

天健天玺项目还配置了赛道泳池,满足业主日常所需,目前,广州仅有部分豪宅住区配置普通泳池,而以赛道级别配置泳池,可谓凤毛麟角。
但项目却下如此重本,只为给业主生活提质,足见其匠造之用心。

商业配套:项目周边商业综合体云集,项目3KM范围内云集40万㎡长岭居门户商业综合体(规划中)、8万方长岭居邻里中心(规划中)及39万方萝岗水西综合体 (在建中)。

交通配套:项目直连黄埔区有轨电车1号线,2站接驳地铁21号线长平站,可一站换乘地铁6、7号线。
未来两条高速地铁(知南快线、广从快线)也将交汇于此。

医疗配套:3KM范围内涵盖一家三甲医院、一家国际医院、一家二甲医院、一家康养医院。

教育配套:项目2km范围,汇聚北师大附属广州实验学校、广铁一中铁英中学、广铁一中铁英小学、长岭居小学、南方中英文学校等多所实力名校。
按照今年的派位结果,项目对口初中所在分组,集结黄埔三大牛校,分别是北师大、铁英、二中。

休闲配套:项目坐揽水牛山、油麻山、萝峰山三山环绕,是黄埔唯一有万里碧道、运动公园、山水间生态公园三公园环绕的小区。
整个片区,约20万平方公里自然生态保护区,都是业主的天然后花园,一呼一吸间,3000个/cm³的负氧离子直抵肺腑。

天健天玺项目主打*复式+别墅会馆,圈层更为纯粹。
建面约85-120㎡为4-5房复式洋房,实用率超120%
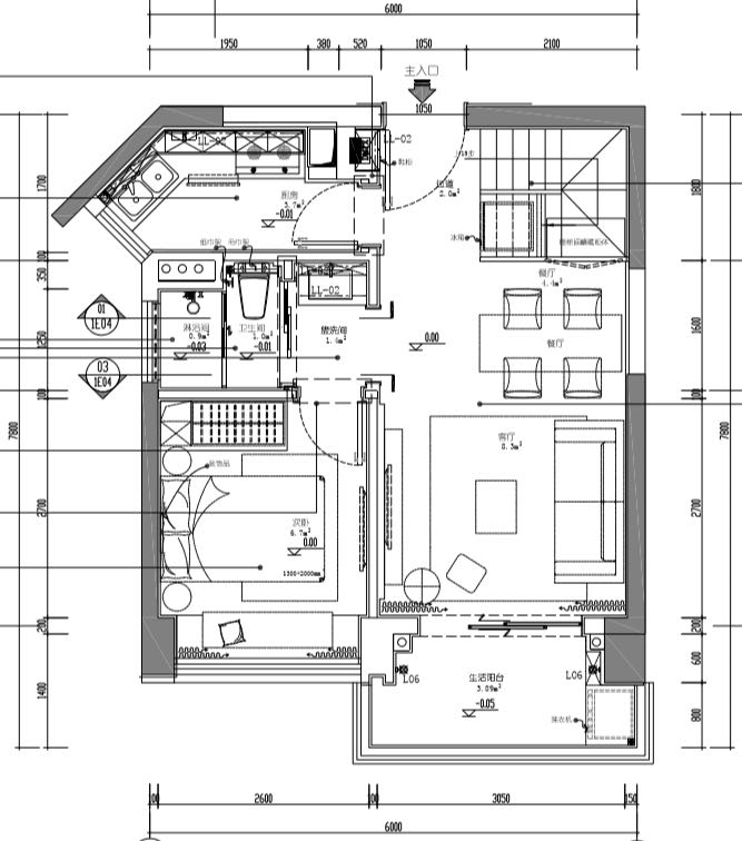
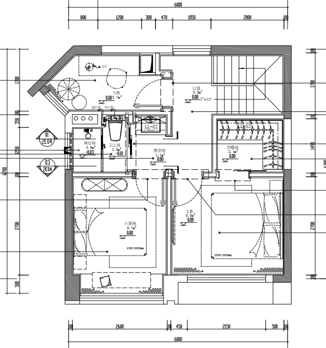
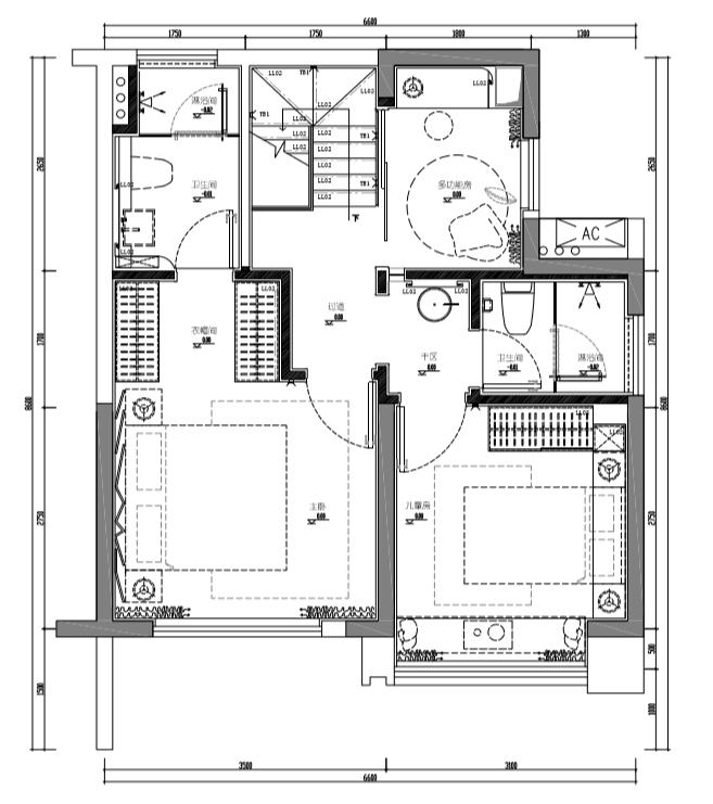
A户型:约118㎡五房两厅三卫

(首层)

(二层)
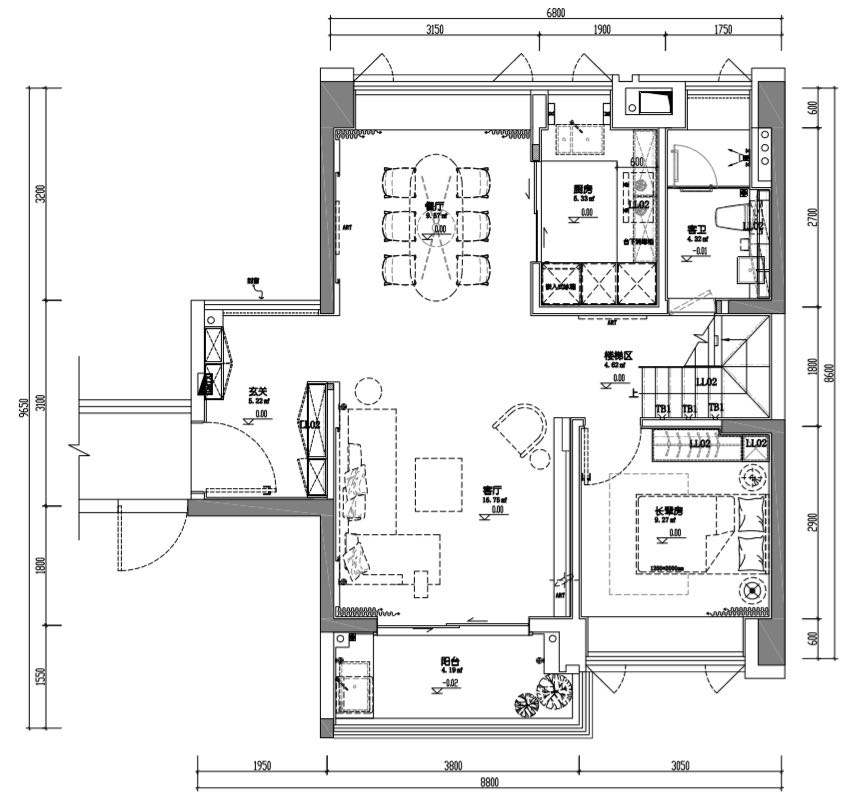
B户型:约85㎡四房两厅两卫

(首层)

(二层)
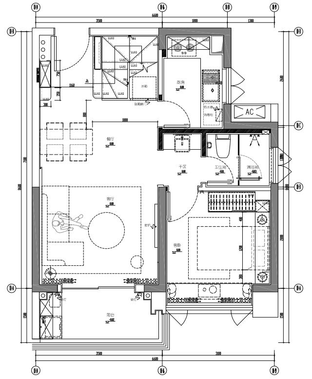
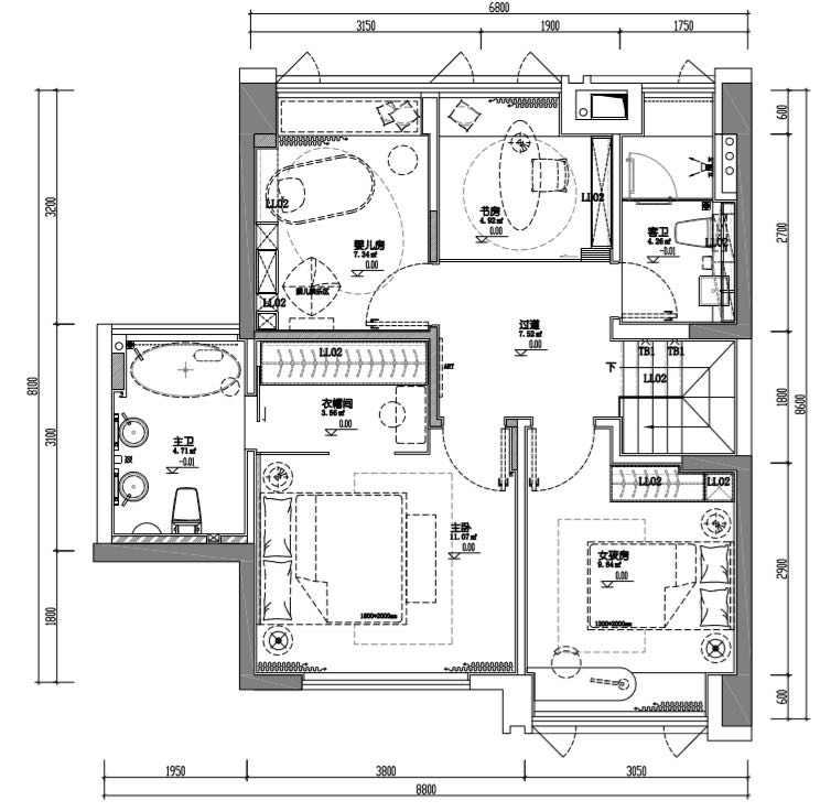
C户型:约95㎡四房两厅三卫

(首层)

(二层)
约330-680㎡,仅60席传世天地院墅!
三成首付即可购买,有天、有地、有院子、有露台、有私家车位;
高层别墅独立分区,可保证别墅的专享私密空间;
*尺度,多套房设计,礼遇家庭各成员的私属生活。




